± 30 minuten rijden
Energieneutraal Wonen op Topniveau
Een villa gebouwd voor de toekomst: A+++, stil, comfortabel en voorzien van de hoogste isolatiestandaarden.
Wonen in het Groen met Maximale Privacy
Een oase van rust in Almere Oosterwold, met volop leefruimte binnen én buiten.
Welkom bij deze Exclusieve Villa in Almere Oosterwold
Overzicht van de Woning
-
Een Lichte en Ruime Leefomgeving
Met grote glaswanden, een open indeling en een hoogte van 3,31 meter voelt het woongedeelte uitzonderlijk ruim en elegant. Hier vloeien koken, wonen en ontspannen moeiteloos in elkaar over, met zichtlijnen naar de tuin en vijver.
-
Duurzaam Wonen op het Hoogste Niveau
De woning is volledig energieneutraal met 36 zonnepanelen, warmtepomp, warmte-koudeopslag via de heipalen en een WTW-unit met koelfunctie. Comfort, stilte en energiezuinigheid komen hier perfect samen.
Comfort, duurzaamheid en luxe tot in elk detail
Exclusieve Voorzieningen van Deze Villa
Architectonisch Ontworpen Leefruimte
De villa heeft een royale, lichte woonruimte met 3,31 meter plafondhoogte en veel glas voor optimaal licht en zicht op de tuin.
Energieneutraal & Toekomstbestendig
Voorzien van 36 zonnepanelen, warmtepomp, warmte-koudeopslag via heipalen en een WTW-unit met koelfunctie voor optimaal wooncomfort.
Prachtige Tuin met Karpervijver
Het perceel van 1.327 m² biedt een vijver, terrassen, fruitbomen en een doordacht Cortenstaal-tuinontwerp.
Energieneutraal
Zonnepanelen en warmtepomp voor maximaal comfort.
Luxe Slaap- & Badkamers
Hoogwaardige afwerking met bad en inloopdouche.
Geïsoleerde Garage
Vrijstaande garage met elektra en laadpunt.
Wasruimte
Handige ruimte voor wasmachine en opslag.
Tuin met Vijver
Riant perceel met vijver en terrassen.
Uitbouw Optie
Onderheid terras voor extra kamer of wellness.
Je voelt de ruimte zodra je binnenstapt.
Wonen in het Groen
van Oosterwold
Belangrijke Locaties in de Omgeving
Auto Bereikbaarheid: Uitstekend
Snelwegen A6 & A27 binnen enkele minuten
Ligging:
Rustig & Groen
Aan water, omringd door natuur in Oosterwold
-
Amsterdam
-
Schiphol Airport
± 30 minuten rijden
-
Winkels & Supermarkten
Nabije omgeving
-
Scholen & Kinderopvang
In de buurt
-
Wandelgebieden
Rondom de woning
Het Verhaal in Getallen
-
2020
Bouwjaar
-
36
Zonnepanelen
-
1327
Perceelgrootte (m²)
-
30
Uitbouw voorbereid (m²)
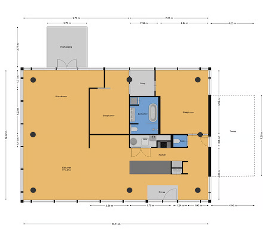
Overzicht van de 206 m² woonruimte op één niveau
Plattegrond & Ruimteverdeling
- PLATTEGROND
- WOONRUIMTES
- SLAAPKAMERS
- GARAGE
- UITBOUW
Plattegrond
Deze villa is volledig gelijkvloers en biedt 206 m² wooncomfort. De leefruimtes zijn ruim, licht en verbonden door een open plattegrond met royale glaspartijen.
- Plan een bezichtiging
- Stel een vraag
- Download de brochure
- Woonoppervlakte 206 m²
- Woonkamer 108 m²
- Slaapkamer 1 28m²
- Slaapkamer 2 21 m²
- Badkamer 9 m²
- Entree/Hal 25 m²
- Technische ruimte 2.8 m²
Woonruimtes
De woonruimte staat volledig in het teken van licht, luxe en comfort. Met een plafondhoogte van 3,31 meter en rondom glas geniet je van een vrij uitzicht over de tuin en vijver.
- Plan een bezichtiging
- Stel een vraag
- Download de brochure
- Woonkamer Ruime open zithoek
- Eetgedeelte Gelegen aan de tuinzijde
- Keuken Hoogwaardige inbouwapparatuur
- Plafondhoogte 3,31 meter
- Zonwering Elektrisch rondom
- Glaspartijen Driekwart van de gevels
SLAAPKAMERS & BADKAMER
De villa beschikt over een royale master bedroom, een tweede multifunctionele kamer en een luxe badkamer met hoogwaardige afwerking.
- Plan een bezichtiging
- Stel een vraag
- Download de brochure
- Master bedroom Grote slaapkamer aan tuinzijde
- Tweede kamer Voor logees / kinderen / kantoor
- Badkamer Ligbad, inloopdouche, dubbele wastafel
- Privacy Afgescheiden slaapgedeelte
- Ventilatie WTW-installatie met koelfunctie
Garage & Parkeren
Aan de voorzijde bevindt zich een vrijstaande stenen garage van 15 m², volledig geïsoleerd en uitgerust met elektra en een oplaadpunt.
- Plan een bezichtiging
- Stel een vraag
- Download de brochure
- Garage 15 m², vrijstaand
- Parkeerplaatsen 5 stuks op eigen terrein
- Laadpunt Aanwezig bij garage
- Toegang Eigen erf, groene parkeerplaatsen
- Gebruik Opslag / Hobby / Voertuig
Uitbouw Mogelijkheid (30 m²)
Het terras aan de westzijde is volledig onderheid en voorbereid voor een uitbouw. Perfect voor een extra slaapkamer, kantoor, wellnessruimte of atelier.
- Plan een bezichtiging
- Stel een vraag
- Download de brochure
- Maximale uitbouw 30 m²
- Fundering Reeds onderheid
- Gebruik Extra kamer / kantoor / wellness
- Tuincontact Volledig zicht op vijver
- Architectuur Aansluitend op de woning
What’s Happening At Apartio
Latest News
Get To Know Our Area, The Best Places Around
Lorem ipsum dolor sit amet, consectetur adipisicing elit, sed do eiusmod tempor incididunt utlabore et ...
- byecohofadmin,
- januari 1, 2022
Find Your Dream Apartment With Luxury & Style
Lorem ipsum dolor sit amet, consectetur adipisicing elit, sed do eiusmod tempor incididunt utlabore et ...
- byecohofadmin,
- januari 1, 2022
Are You Relocating? Read Our Moving Checklist
Lorem ipsum dolor sit amet, consectetur adipisicing elit, sed do eiusmod tempor incididunt utlabore et ...
- byecohofadmin,
- januari 1, 2022
Remain Productive During Covid-19 Period. How to
Lorem ipsum dolor sit amet, consectetur adipisicing elit, sed do eiusmod tempor incididunt utlabore et ...
- byecohofadmin,
- januari 1, 2022
Over ons
Wij begeleiden de verkoop van exclusieve woningen met aandacht, vakmanschap en transparantie. Met jarenlange ervaring in architectuur en vastgoed zorgen wij voor een professionele presentatie en duidelijke communicatie bij iedere stap.
Contact
-
Adress
Baron van Keverbergweg 5
-
Telefoon
-
Email
EcoHof © 2025 | Website laten maken door ViVortis
